Jouw droom kantoor aan huis
Werkt u vaak vanuit huis? Bent u op zoek naar een ruimte, maar niet te ver van huis?
Heeft u behoefte aan een plek waar u ongestoord kunt werken, zonder afleiding van het huishouden? Een eigen buitenkantoor biedt u precies die rust en focus die u nodig heeft, dichtbij maar toch helemaal apart. Waarom zou u nog in huis werken, als u buiten de deur een inspirerende werkplek kunt creëren? Ontdek de voordelen van een buitenkantoor en til uw productiviteit naar een hoger niveau.

Maak kennis met onze Kantoor Verblijven
Werken in alle rust, gewoon in je eigen tuin.
Ons kantoorverblijf is dé oplossing voor wie thuiswerkt, maar niet in de keuken wil vergaderen of aan de eettafel wil typen. Geen rinkelende telefoons van huisgenoten, geen stapels papier op het aanrecht maar een rustige, stijlvolle plek waar jij je kunt focussen.
Of je nu creatieve plannen smeedt, klantgesprekken voert of gewoon ongestoord je mails wilt bijwerken: ons kantoorverblijf geeft je de ruimte. Letterlijk én figuurlijk. En het mooie? Je wandelt er zó naartoe met je kop koffie.
Voorbeeld Verblijven
Kantoor Verblijf
Een kantoorverblijf koop je niet elke dag. Daarom is het belangrijk om goed na te denken over wat bij jou of jullie past. Wat zijn je wensen? Hoe wil je de ruimte gebruiken? Tijdens het intakegesprek nemen we hier uitgebreid de tijd voor. Van materiaalkeuze tot afwerking: alles komt aan bod.
Heb je iets gezien in één van onze 3D-ontwerpen dat je aanspreekt? Of werk je liever vanuit een eigen idee? Alles is mogelijk. Samen gaan we voor een resultaat dat niet alleen praktisch is, maar ook perfect aansluit bij jouw stijl en wensen. Ons doel? Jouw ideale kantoorverblijf realiseren.
Good to know!
- Controleer bij je gemeente of je vergunningsvrij mag bouwen. Hulp nodig? Laat het ons weten, we denken graag met je mee.
- De klant zorgt zelf voor de aansluiting van water, elektriciteit en internet (indien van toepassing) vanaf de woning.
- Zowel prefab als maatwerk behoren tot de mogelijkheden. We leveren zelfs prefab mét maatwerk.
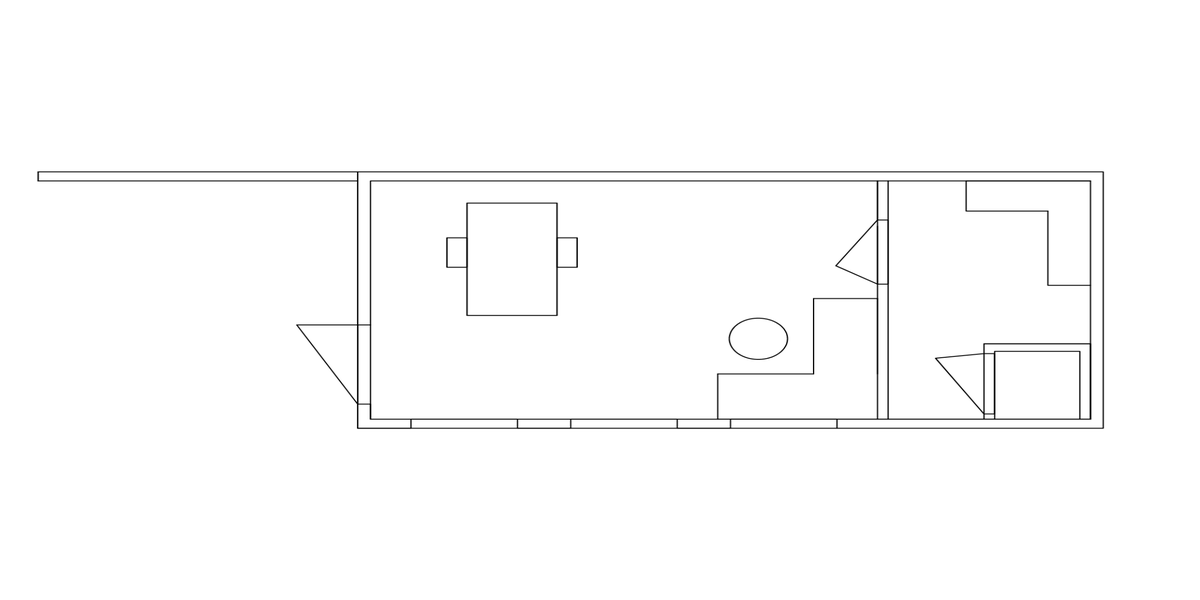
Plattegrond tekening Kantoor Verblijf
Graag laten we je kennismaken met enkele voorbeelden van 2D-plattegrondtekeningen voor Kantoor Verblijf. Deze tekeningen geven je een idee van de diverse indelingen en mogelijkheden die we kunnen realiseren. Herken je hier een stijl die bij jou past, of heb je juist een eigen ontwerp in gedachten? Alles is bespreekbaar.
Of je nu kiest voor een volledig lege ruimte om zelf in te richten, of juist voor een inrichting met een functioneel keukenblok, een comfortabele wc of een praktische kastenwand. Wij denken met je mee en zorgen dat het Kantoor Verblijf perfect aansluit op jouw wensen.
Wil je meer weten of direct aan de slag? Neem gerust contact met ons op voor een persoonlijk adviesgesprek, of vraag vrijblijvend onze brochure aan. Zo ontdek je alle mogelijkheden en inspiratie voor jouw ideale kantoorruimte.
De mogelijkheden bespreken voor uw Buiten Verblijf?
Vul het formulier in en wij zullen zo spoedig mogelijk
contact met je opnemen.